Fort Sublette Site Plan - Pinedale Online News, Wyoming
Pinedale Online!
www.PinedaleOnline.com
www.Pinedale.com

Pinedale on the Web!
Pinedale, Wyoming

Home | Calendar of Events | Photo Gallery | Local Businesses |

Pinedale Online > News > October 2025 > Ground Breaking for Fort Sublette October 18 > Fort Sublette Site Plan
Back to Article
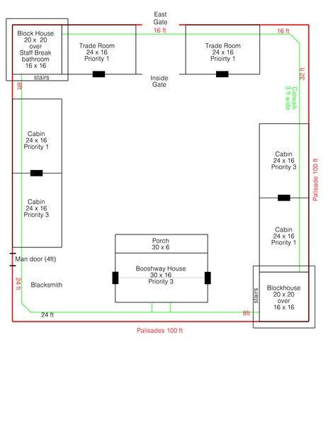
Fort Sublette Site Plan. Photo by Museum of the Mountain Man.
© Photo by Museum of the Mountain Man
Fort Sublette Site Plan

Pinedale Online!
Pinedale Online! PO Box 2250, Pinedale, WY 82941
Phone: (307) 360-7689 , Fax: (307) 367-2864

Office Outlet in Pinedale, 43 S. Sublette
E-mail:support@pinedaleonline.com

Copyright © 2022 Pinedale Online. All rights reserved.
Pictures and content cannot be used in whole or part without permission.